
HD Tip Evropski dizalica sa jednim nosačem nadzemni kran
Evropski višenamenski kran sa jednim nosačem je dizajniran i proizveden kompaktan dizajniran i proizveden u strogoj saglasnosti sa FEM i DIN standardom, koji sa naprednom tehnologijom i prelijepim dizajnom. Podijeljeni u opšte vrste i tip suspenzije, podržavaju upotrebu evropske standardne električne dizalice, pogodne za rukovanje materijalima i magacinima, montažu velikih dijelova preciznosti i drugim mestima.
HD Tip Evropski dizalica sa jednim nosačem nadzemni kran
Kratak opis:
Evropski višenamenski kran sa jednim nosačem je dizajniran i proizveden kompaktan dizajniran i proizveden u strogoj saglasnosti sa FEM i DIN standardom, koji sa naprednom tehnologijom i prelijepim dizajnom. Podijeljeni u opšte vrste i tip suspenzije, podržavaju upotrebu evropske standardne električne dizalice, pogodne za rukovanje materijalima i magacinima, montažu velikih dijelova preciznosti i drugim mestima.

Može se široko koristiti u proizvodnji mašina, metalurgiji, nafti, petrifikaciji, luci, željeznici, civilnoj avijaciji, hrani, proizvodnji papira, građevinarstvu, radionici u elektronskoj industriji, skladištima i drugim situacijama rukovanja materijalima, primenjivani za rukovanje materijalima koji trebaju precizno pozicioniranje, velike komponente precizno stanje montaže.

Detaljne slike:

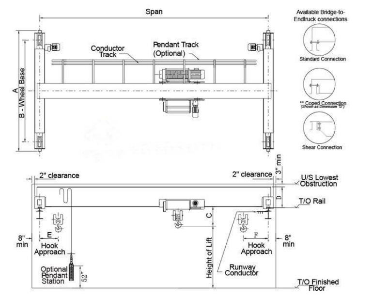
Crtež crteža:

Tehnički parametri:
Raspon | m | 7.5 | 10.5 | 13.5 | 16.5 | 19.5 | 22.5 | 25.5 |
Kapacitet | t | 1 ~ 12.5t | ||||||
Ukupna tezina | kg | 1781 ~ 12086 | ||||||
Težina kolica | kg | 405 ~ 740 | ||||||
Max. Opterećenje kotača | kn | 13,5 ~ 90,94 | ||||||
Putna šina | P24 ~ P43 | |||||||
Brzina podizanja | m / min | 0,8 / 5 | 0,8 / 5 | 0,8 / 5 | 0,8 / 5 | 0,8 / 5 | 0,8 / 5 | 0,8 / 5 |
Visina dizanja | m | ≥ 6 | ≥ 6 | ≥ 6 | ≥ 6 | ≥ 6 | ≥ 6 | ≥ 6 |
Ukupna snaga motora | kw | 4.31 | 4.31 | 4.31 | 4.31 | 4.67 | 4.67 | 4.67 |
Brzina krana | m / min | 3-30 | 3-30 | 3-30 | 3-30 | 3-30 | 3-30 | 3-30 |
Brzina kolica | m / min | 2-20 | 2-20 | 2-20 | 2-20 | 2-20 | 2-20 | 2-20 |
Radna obaveza | M5 / A5 | |||||||


English
Srbija jezik (latinica)
Italiano
tlhIngan
Latviešu
Indonesia
Svenska
Español
日本語
српски (ћирилица)
Melayu
Български





